Cortes Residence
Location: San Diego, CA
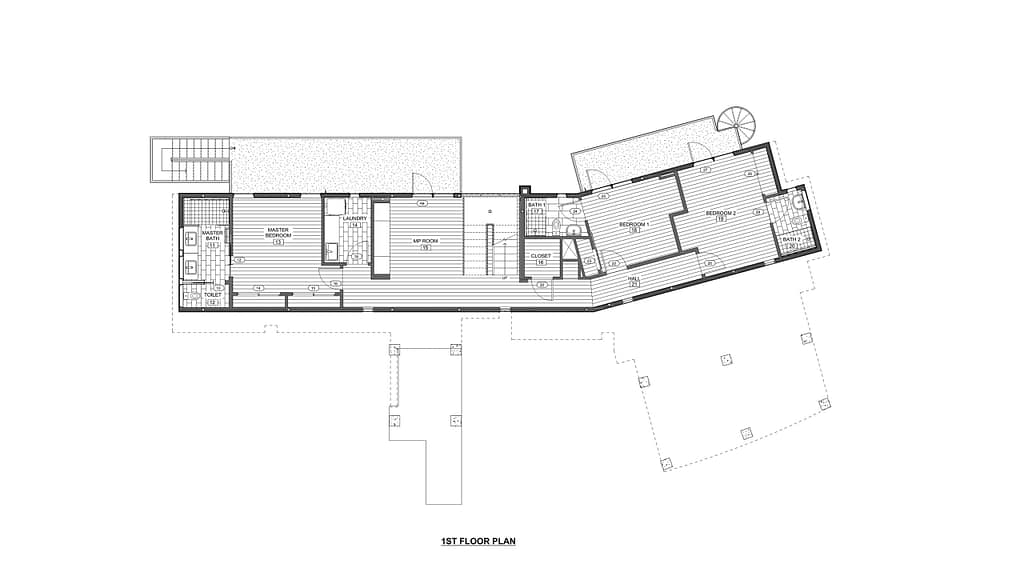
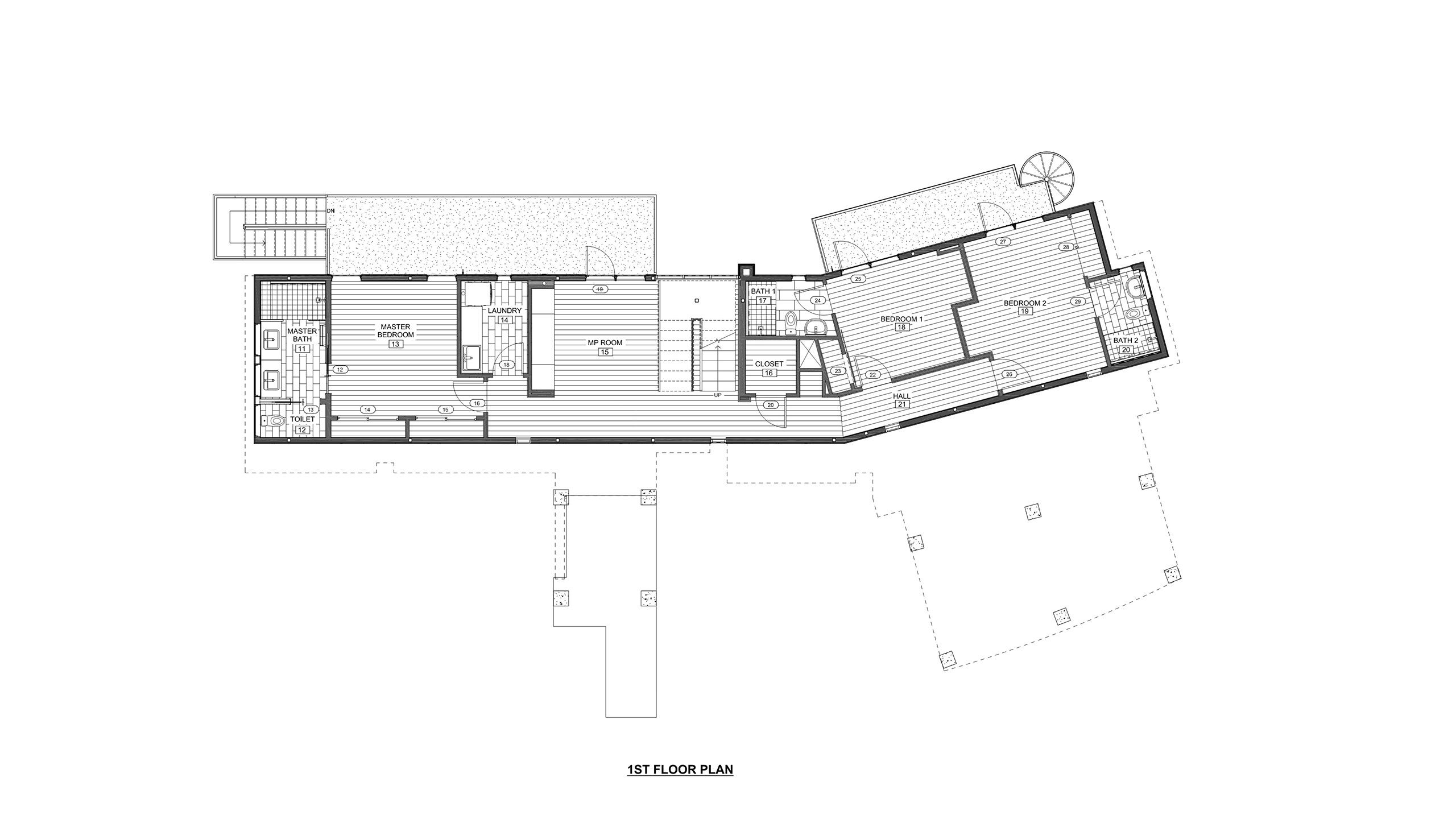
The project was conceived in 2016 and completed in 2019. It was planned on a hillside property located near San Diego State University. The owner is a family of four, and their previous home in Puerto Rico, where they once lived together, stands on a hillside. They came across our portfolio project "House in Mission Hills," which reminded them of that time, and their nostalgia lead them approach us to design their new home in San Diego. From the site, a panoramic view of the San Diego downtown skyline can be seen, and the approach to the site is from a road on the upslope side, where the slope grade, setbacks, and building height restrictions have led to the planning of a bridge connecting to the garage. At the request of the owners, the design planned to minimize land alteration as much as possible. The structure consists of a post-and-beam construction built on 22 concrete corner pillars measuring 18”x18” driven into the slope, topped by a two-story wooden light frame. Additionally, the site curves along the street in front, allowing a collection of individual small cube forms to align with that curve. Slits are placed at the joints of the cubes to achieve natural light, facade accents, and privacy simultaneously. Furthermore, two enormous oak trees tower in the central part of the site, effectively screening the hot summer western sun. The trees are positioned so that fresh greens from the garden reflect into the backyard openings. There is a ravine in the backyard, with boulders peeking out here and there, surrounded by rich trees, allowing for a unique property that maximizes its potential as it offers a feeling of being in a campsite while situated in a suburban residential area.























