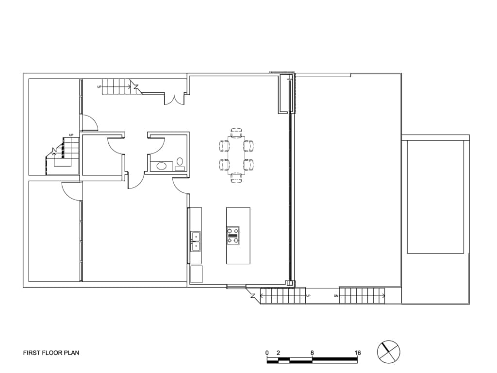
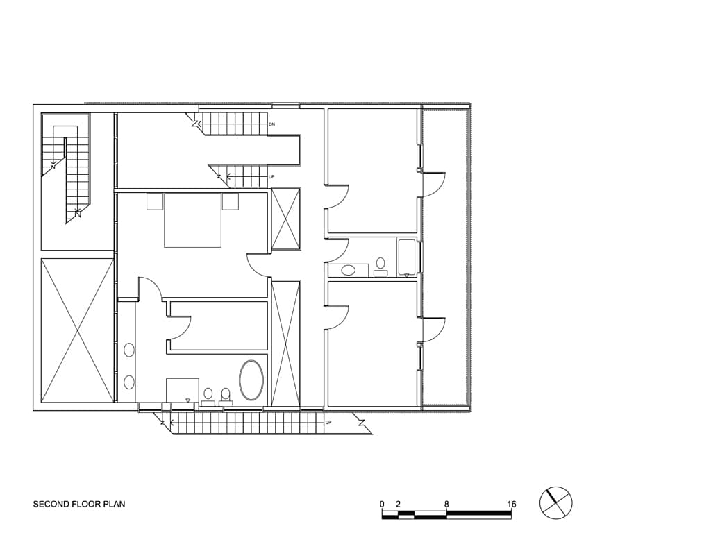
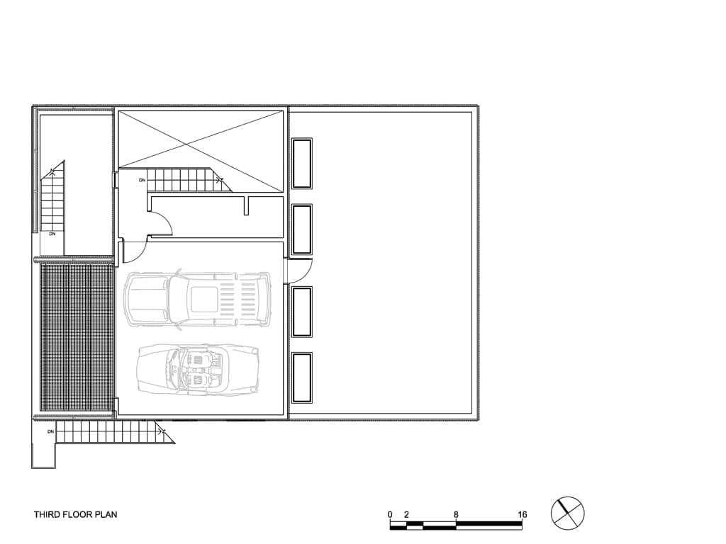
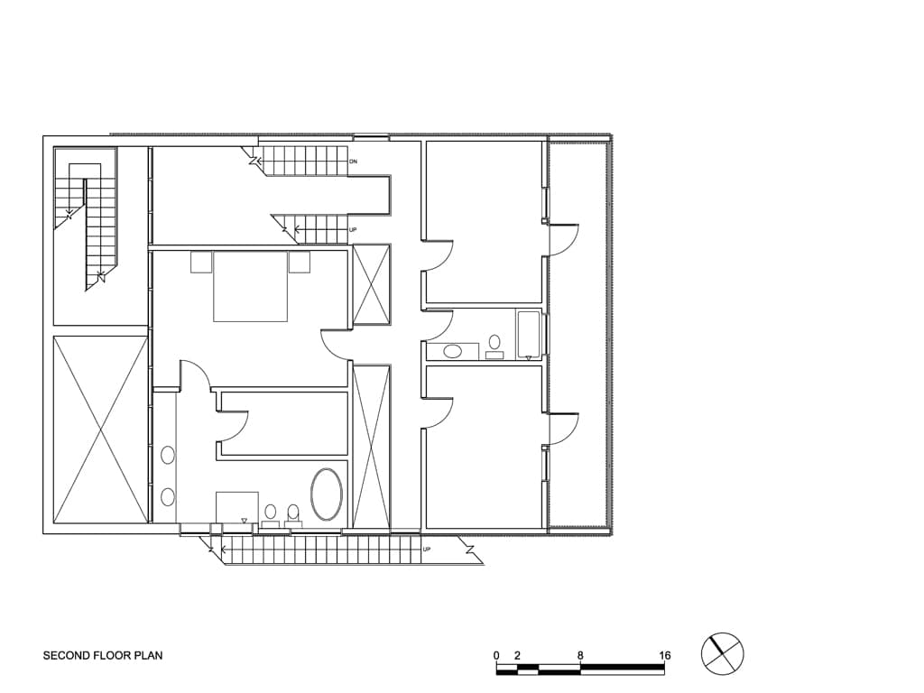
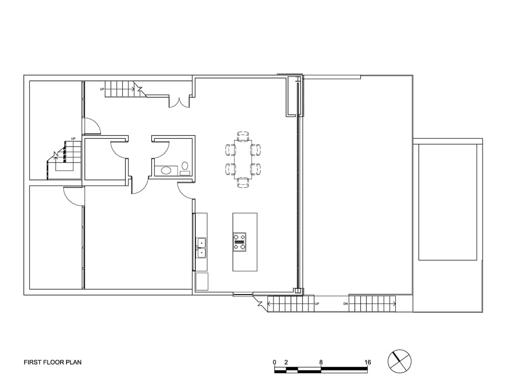
House in Mission Hills
Location: San Diego, CA
The house is located on a woody hillside overlooking San Diego Bay to the southwest. The program requirements were to create a villa taking advantage of the terrain and views, while preserving surrounding vegetation as much as possible, thus the stepped configuration is used.











