Martinez Residence
Location: Escondido, CA
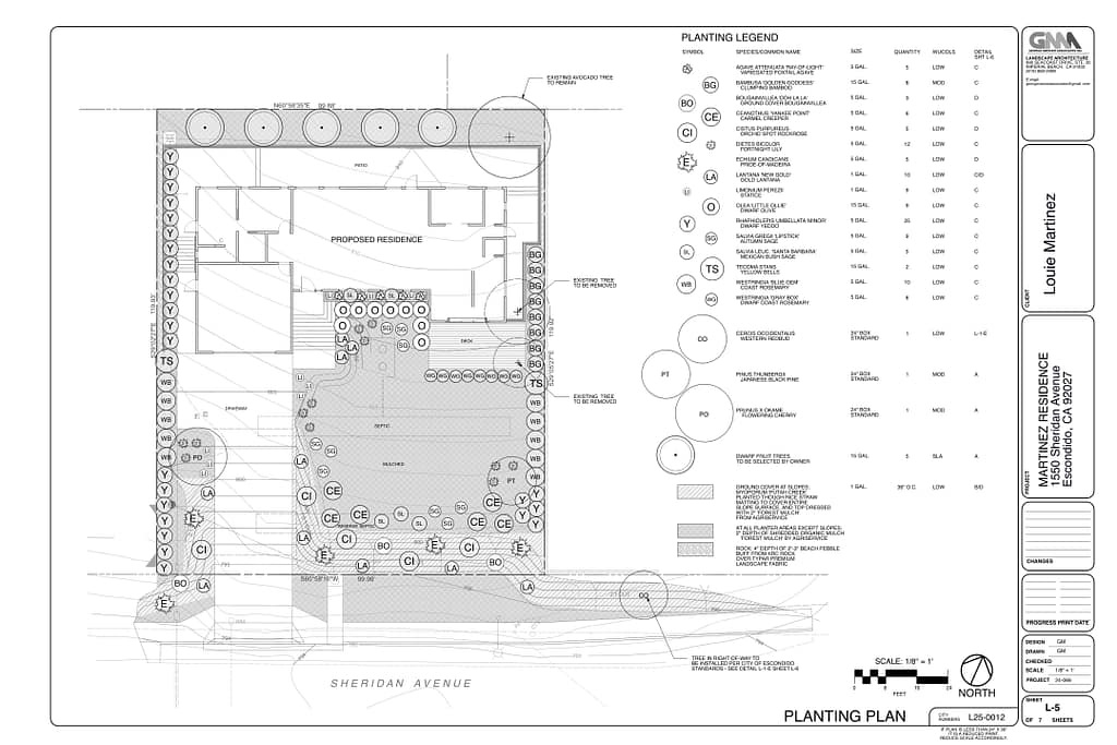
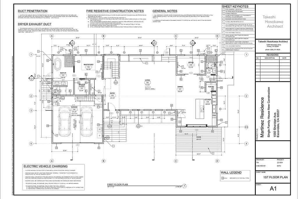
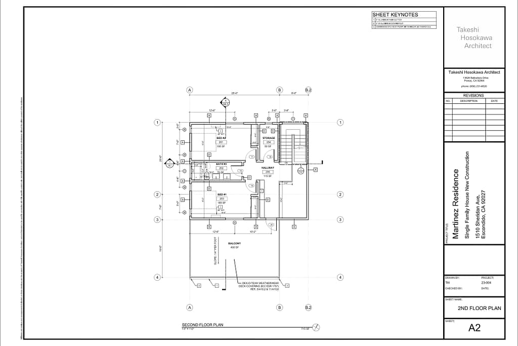
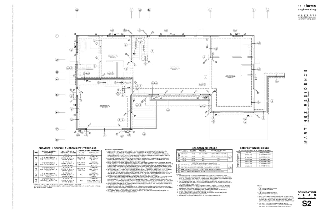
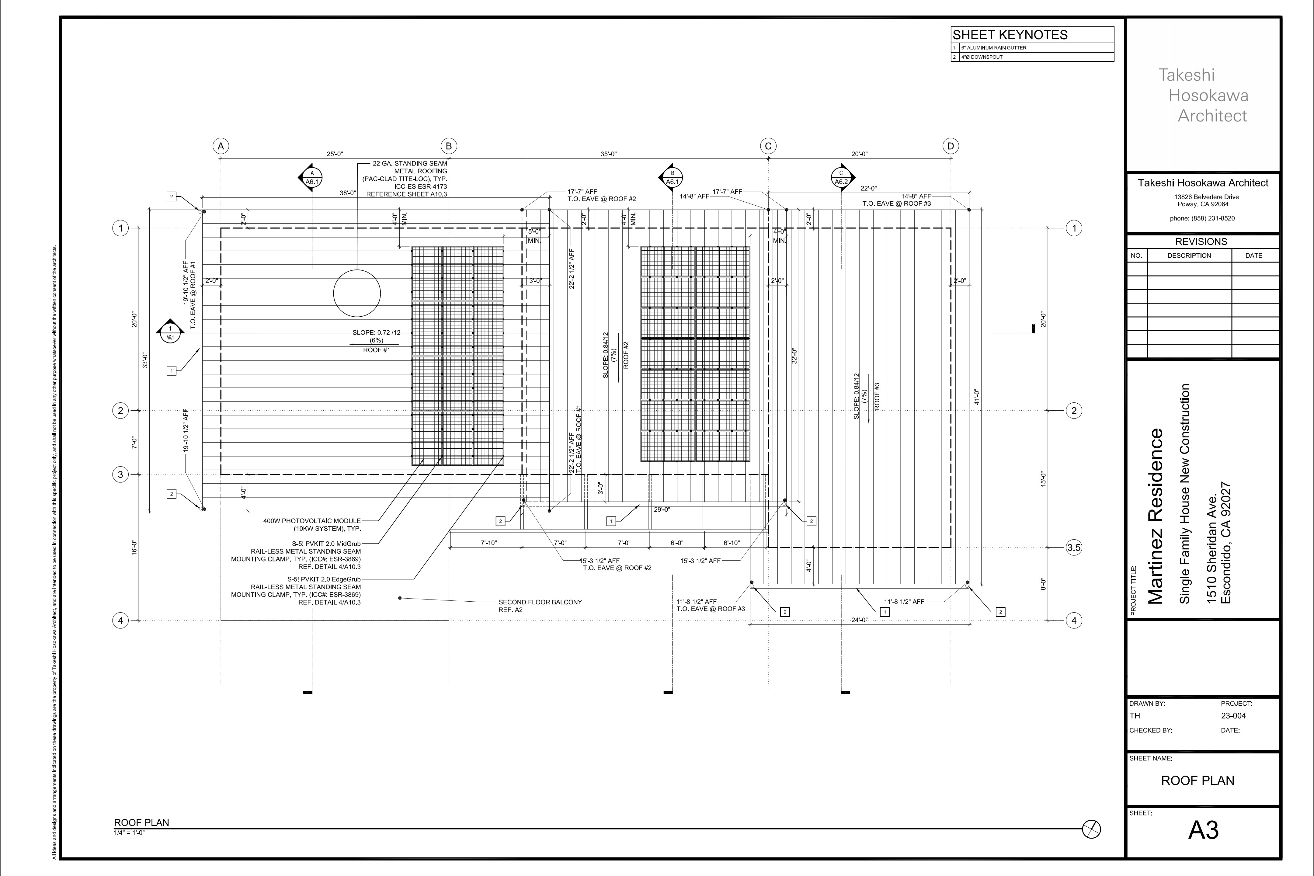
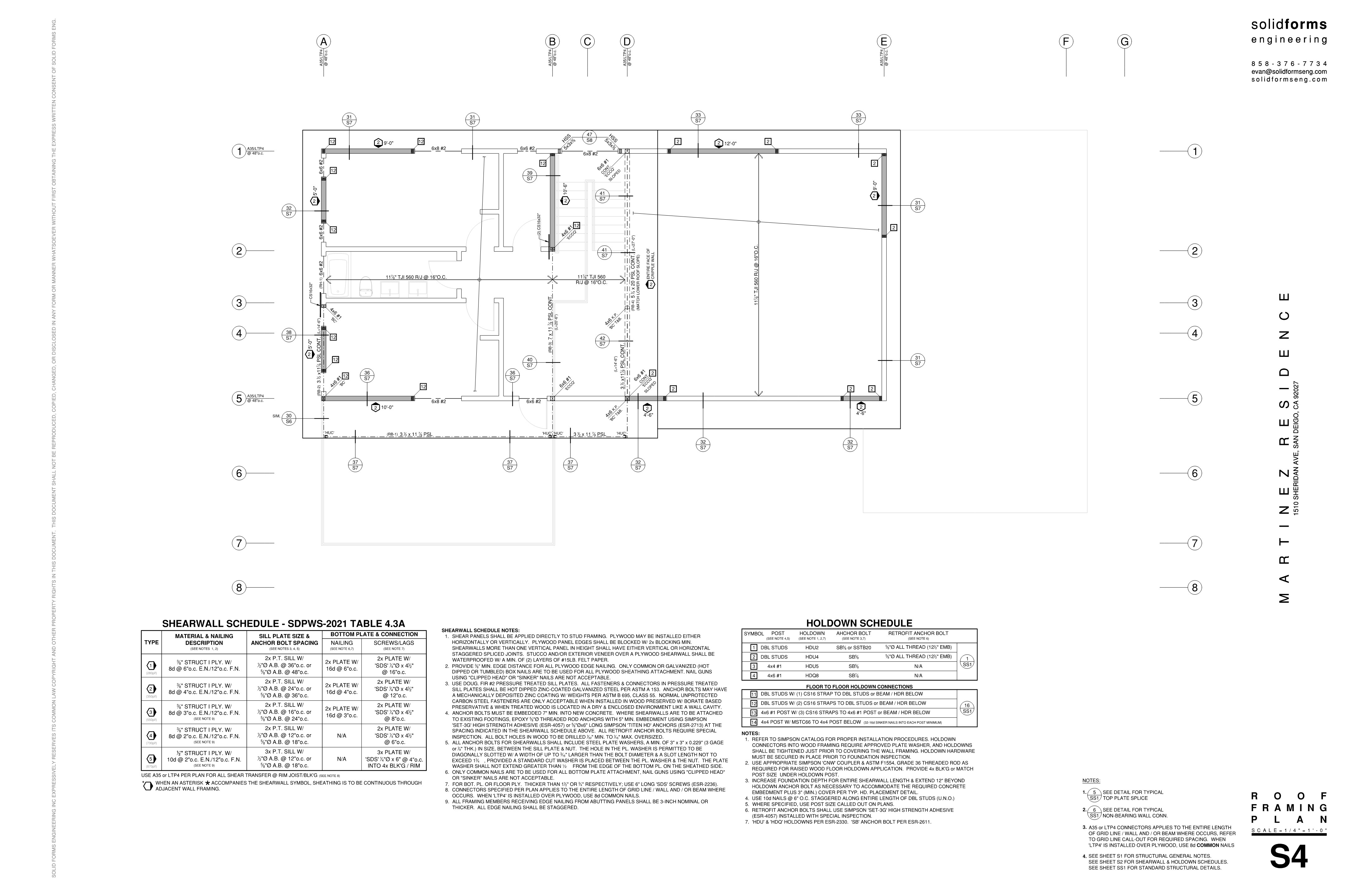
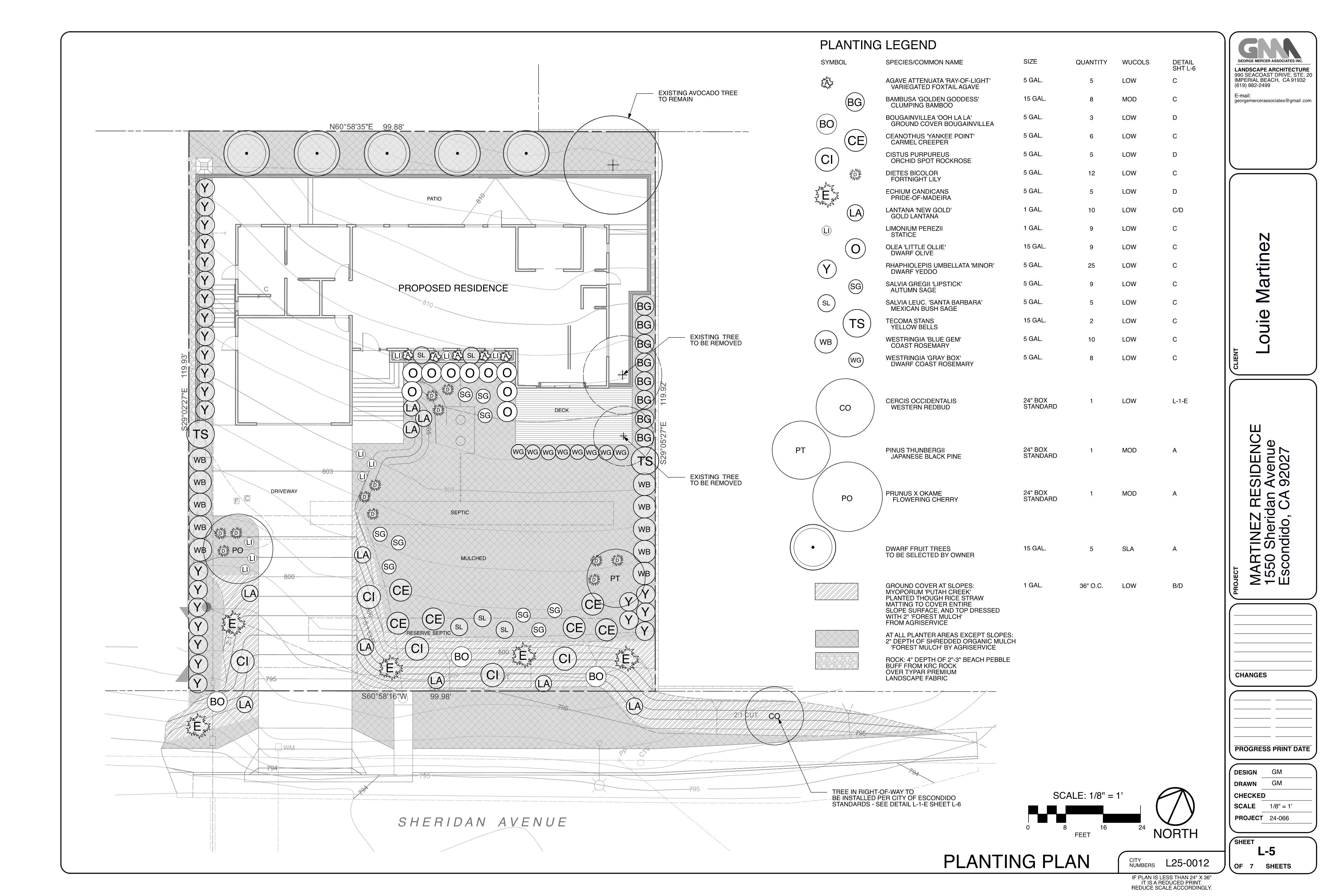
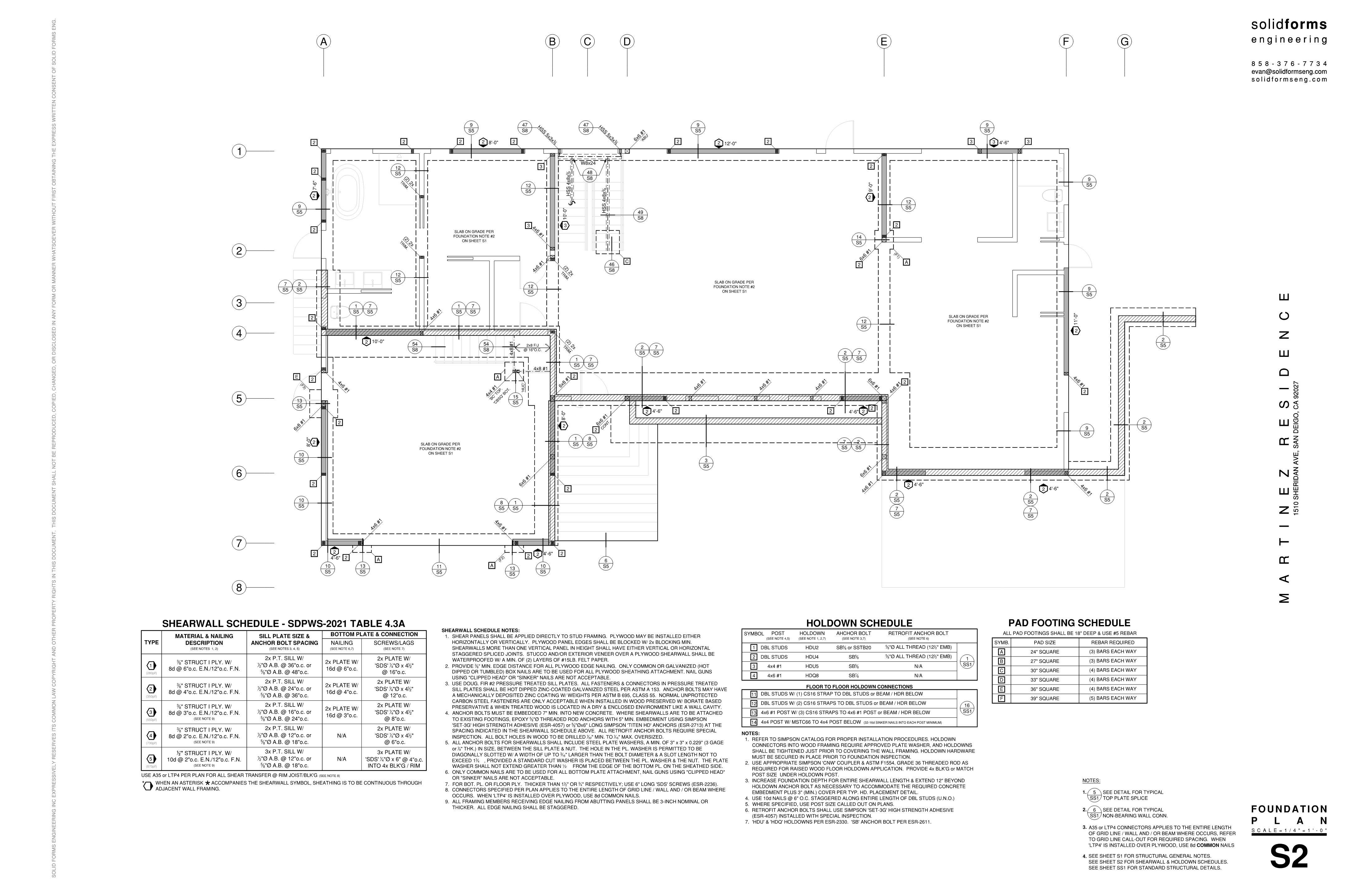
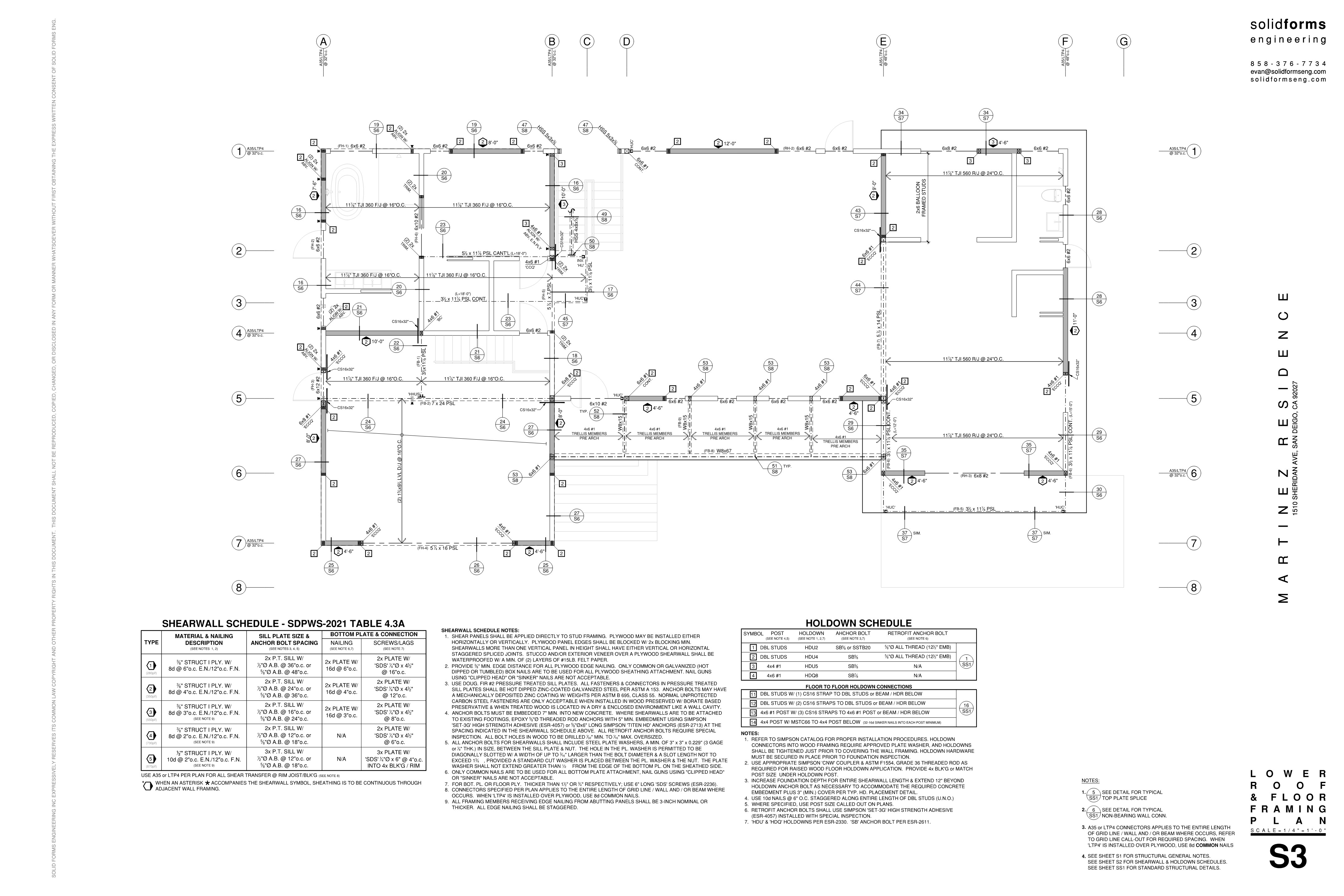
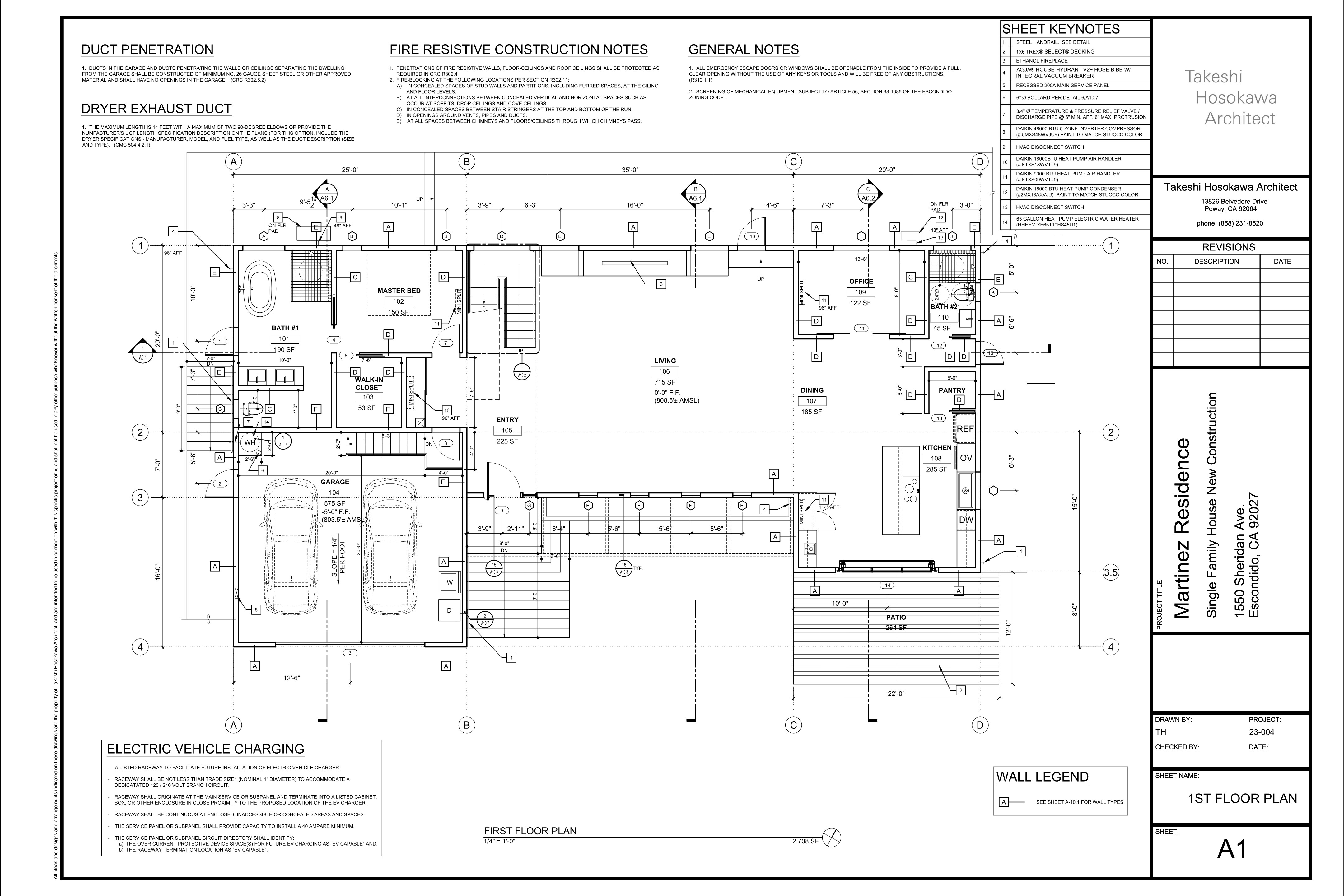
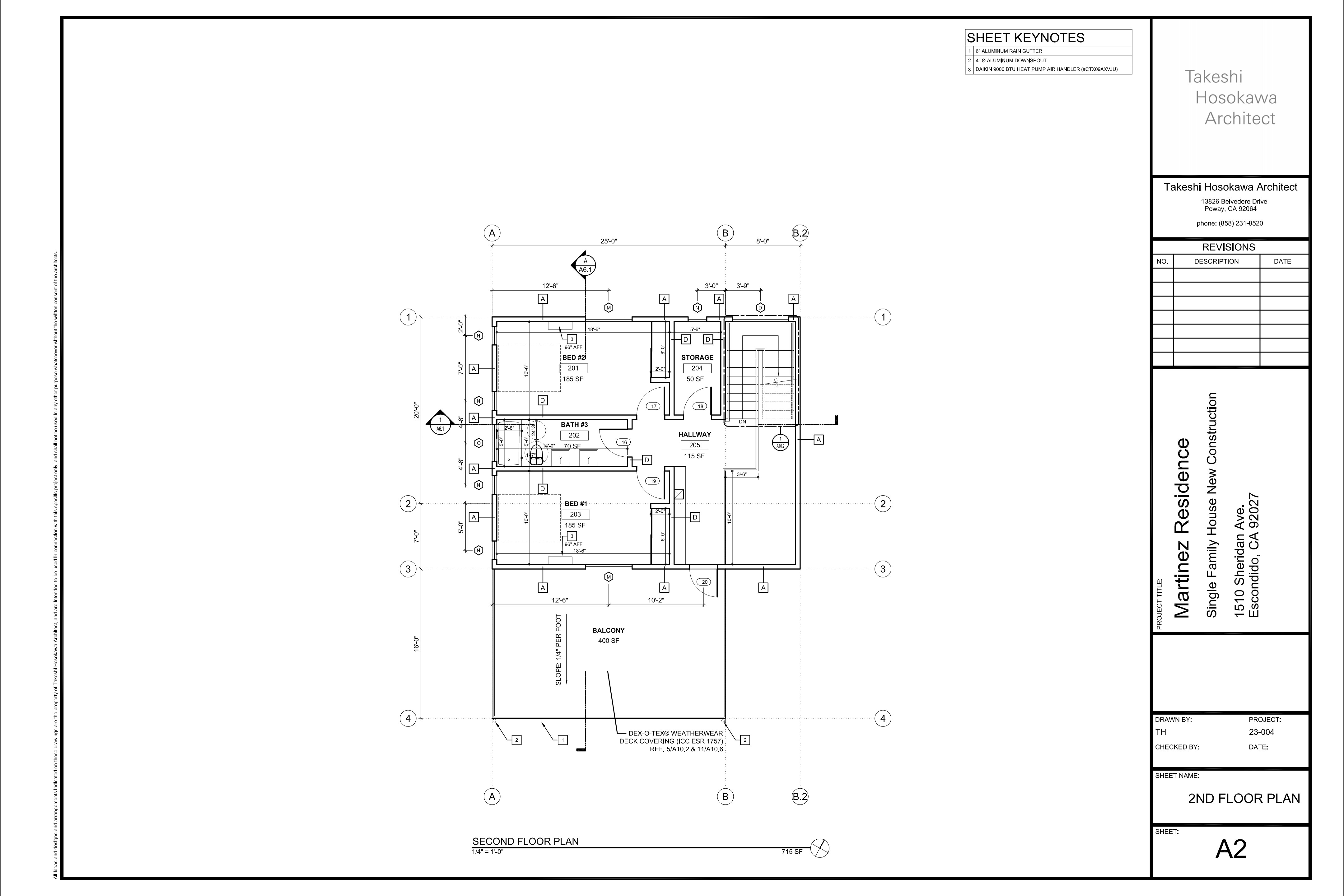
The project was planned on a gently sloping lot in a suburban residential neighborhood of the City of Escondido. Design began in 2024; the building permit was approved in 2025, and construction is scheduled to start in 2026. The Owner is a builder, and the residence is for his family of 3. Because the sewer does not reach the street in front of the site and connecting to it would be costly, a septic system was considered from the start and the project was advanced on that basis. The site slopes upward gradually from the front street and features a flat, elevated area near the northern property line; the house is therefore sited near that high plateau, and the septic system is located on the southward slope so as to minimize site grading. However, the City, following its policy, required a sewer connection, and the planning process stalled. After several meetings with the City’s engineering team, in which we presented and compared cost estimates for two scenarios (sewer connection vs. septic system), our septic-system proposal was finally accepted. The residence is a two-story house with three bedrooms and three bathrooms; the living room was required to be a spacious area with a 16-foot ceiling height. Considering the site slope, a level change was introduced between the garage and the main living areas: the bedroom cluster is arranged as a two-story volume while the other areas are single-story. A patio was placed adjacent to the kitchen to provide immediate access to the outdoors, creating a continuous kitchen–dining–outdoor flow; the opening to that patio is a full-height, hydraulically operated automatic awning door so that when opened it also serves as a canopy over the patio. The master bathroom is located on the north side of the garage, with access planned for a future sauna to be installed in the backyard; an opening was positioned so that the greenery of the backyard trees is reflected during relaxing moments in the bathtub. From the child’s room on the second floor, access to a generous outdoor area is provided by making the garage roof into a balcony.
























